자연주의 중목구조 

팀버프레임 건축


반하우스는 자연주의 목조건축을 추구합니다. 건강한 친환경 자재를 사용하며 전통 수공법으로 지어집니다. 


대한민국의 팀버프레임 공법은 반 하우스에서 시작되었습니다.  반하우스 는 1998년부터 목조주택을 지었습니다.  


캐나다 ISBA ( Island School of Building Art) 에서 팀버프레임 수학 후 2002년 제주에서 동료 목수 3명과 함께 중목구조 주택을 지었는 데 그것이 현대식으로 지어진 국내 최초의 팀버프레임 건축이 되었습니다.



Our  Mission

반하우스의 팀버프레임은 장식적 목구조가 아닌 구조 시스템입니다.

전통적인 서양식 팀버프레임 조이너리(Traditional Joinery)를 기반으로 하되, 구조 해석을 전제로 한 골조 구성,  현대적인 단열·기밀 레이어 분리 구조체와 외피를 분리한 하이브리드 시스템을 적용한 현대식 팀버프레임 공법을 사용합니다. 특히 외피에 SIP를 사용하여 구조체 외측에 연속적인 단열층을 형성하는 방식으로 설계되어, 패시브하우스 수준의 놀라운 단열성능을 확보합니다. 

구조적 안정성에 대해서는 1980년대부터 이미 내진 구조 개념을 적용해 구조적 안정성을 확보해 왔습니다.  


반하우스의 팀버프레임은 미국 팀버프레이머 길드(TFG)의 엔지니어링 매뉴얼과 제작 스탠더드를 기반으로 하며, 단순한 전통 팀버프레임의 재현이 아닌, 엔지니어링과 장인기술이 결합된 현대 팀버프레임을 구현합니다. 반하우스는 2001년부터 TFG 정회원으로 활동하며, 검증된 구조와 축적된 경험을 바탕으로 고성능 팀버프레임 건축을 제공합니다.



We are Proud Member of Timber Framers Guild.


Colonel House

2020

금산

충남 추부 서대산자락에 지어진 보석상자 같은 주택. 

하이브리드 팀버프레임. 장방형 일자 주택.


프레임 구조는  한쌍의 미드스판 플레이트를 가지는 퀸포스트 구조.


전체적으로 장식적 이지 않으며 프레임의 모든 부재는 더 이상 뺄 것 없이 반드시 필요한 제 기능에 충실하다.  그것이 공간을  차분하고 품위 있게 만든다. 


 겸손하고 성실한 건축주를 닮은 집.




blog

영현재 3 (프레임 해부)

관리자
조회수 686



팀버해부 


씨저스 트러스[Scissors Truss]



팀버프레임 건축의 특징 중 하나는 똑같은 단면의 건축물이라도 20여개 이상의 개성있는 프레임으로 설계 가능 하다는 것이다. 정말 큰 장점이 아닐 수 없다.  이번 프로젝트에서는 대략 5~6 가지 프레임을 물망에 올려 검토한 후 3가지 프레임을 대안으로 프레젠테이션 하였다.  


최초 제시안은 1. 퀸포스트를  사용한 스텐딩 구조,  2. 해머빔 트러스,  3. 씨저 트러스  총 3가지 프레임을 제시하였다.


미주에서 팀버프레임주택에  주로 쓰여지는 구조는 대부분  벤트와 펄린으로 이루어지는 프레임이다. 일반적으로 중목구조 팀버프레임의 이미지를 대부분 인터넷과 서적으로 접하다 보니  참고 하는 이미지와 도면 또한 펄린 구조가 많다. 물론 서양식 팀버프레임에서도 스텐딩 구조와 서까래를 사용하는 경우가 있지만 주로 대형 건축에서 사용된다. 


퀸포스트 스텐딩 구조 제시안.



그런데 전통적으로 한옥구조에서 살아온 우리나라 사람의 정서로는 아무래도 펄린 구조는 이질적인 요소가 있게 마련이다. 따라서 서까래와 스텐딩 구조를 단골로 추천하게 되는 데 막상 잘 채택되지 않는다. 문제는 스판거리 상 퀸포스트 프레임을 사용해야하는 데 그렇게 되면 중간의 기둥을 감수해야 한다. 궁여지책으로 중간기둥을 없애고 해머빔 구조로 할 수도 있으나 프레임이 복잡해진다. 퀸포스트 스텐딩 구조가 잘 채택되진 않는 이유이다. 같은 이유로 한때 해머빔 구조가 팀버프레임 건축의 대표격으로 유행했던 시절도 있었다. 단면을 이루는 벤트는 트러스 구조가 멋있어서 결론적으로 선호되는 구조는 벤트는 트러스 구조여야 하고 또 펄린이 아니라 서까래가 있으면 좋겠다는 것이다.  


이번 프로젝트에서 벤트의 트러스는 시져 트러스가 선정되었고 거기에 서까래를 올려야 한다. 

그런데 Form Follows Fuction. 이라고 프레임이라면 나름 타당한 이유가 있어야 한다. 일반적이라면 벤트 상단에 용마루보 (Ridge)를 놓고 플레이트단 (Plate) 을 연결하는 서까래구조가 일반적이다. 이 경우 서까래 단면의 크기를 스케일에 마추어 결정하고 구조계산하여 모자르는 하중부분을 펄린으로 보조하게 하는 구조를 사용하게 된다. 보통 이 경우  서까래 ( Common Rafter)상단 면과 프린시펄 래프터 ( Principal Rafter : 주 서까래 ) 상단을 일치시키는 것이  일반적인 설계법이다. 설계도 시공도 편하다. 단지 펄린의 위치가 서까래 하단에 위치해야 하는 만큼 프린시펄 래프터에 하우징과 스플라인을 사용해야 한다.  


하지만 또 다른 대안은 독일, 프랑스식 프레임 구조에서 주로 보이는 형식인데 펄린(Purlin)을 프린시펄 래프터 위에 얹고 그위에 다시 서까래 (Rafter)를 얹는 방식이다. 이 구조는 부재의 단면을 완전히 사용할 수 있어서 구조적으로 튼튼하다. 주로 대형 프레임에서 사용되는 데 플레이트단 위에 서까래 하단 ( Rafter Foot )를 얹을 부분을 따로 설치해야 되며 기둥과 킹포스트 플레이트 등을 유기적으로 설계해야 하고 손이 많이 가는 번거로움이 있다. 하지만 프레임이 직관적이고 일관성이 있어 좋다. 또 프린시펄 래프터, 펄린, 서까래 그리고 그위에 루버까지 가로 세로로 서로 엮이며 프레임의 두께가 두터워진다.  


독일 팀버프레임 답사 중 오래된 농가 혹은 창고에서 흔히 보았던 프레임 구조이다. 국내에서는 처음 시도되는 프레임이다. 시공에 손이 더 가고 자재가 더 많이 쓰이는 만큼 시공비는 다소 증가되는 편이나 기대 이상의 효과를 얻었다.


메인 벤트를 구성하는 트러스 구조는 시저 트러스 인데 국내에서는 아주 드문 트러스이다.  시져트러스의 특징은 비교적 짧은 부재를 사용하여 중간 기둥 없는 큰 스판의 공간을 만들 수 있다. 또 전통기법으로 치목하면  여러 부재가 정교하게 짜여 기하학적인 구조를 형성하게 되는 데 이는 보는 사람들로 하여금 경이로움과 궁금증을 불러 일으키게 한다. 


막상 시저트러스로 선정되고나니  어렴풋이 예전에 답사 했던 채부동 교회가 생각난다. 스케일도 확인 할 겸 다시 한번 가보았다. 내가 자문이나 답사를 다녀온 곳 중에서 예외적 프레임이 두곳 있는 데 한 곳은 종로구 가회동의 이준구 주택이고 또 하나는 채부동 교회이다.이준구 주택은 퀸포스트의 변형이고 채부동 교회가 시져 트러스 프레임이다. 



418d9e02af635.png체부동 옛 성결교회. 현재 주민문화센터로 사용되고 있다.




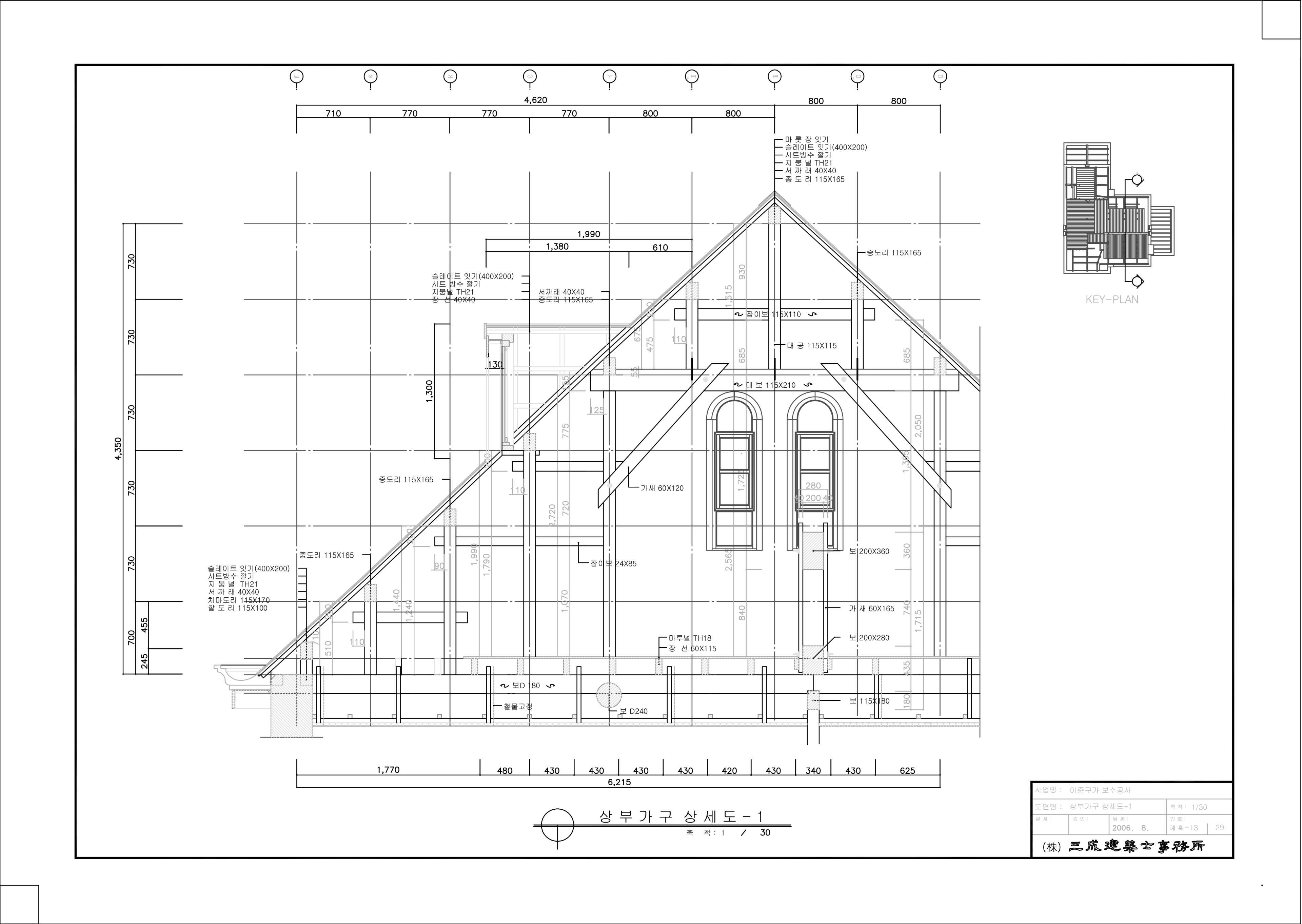
0802bd1afc125.png종로구 가회동 이준구 가옥 가구도. 조선 개화기 설계는 프랑스인 시공은 일본업체가 건설함. 보수공사 자문으로  답사한 결과 서적으로만 보던 디테일이 실제 구현된 주택이어서 놀라웠다. 그 중에 제일 놀라웠던 디테일은 세로 창( Double Hung Window )에 문자 그대로 도르래와 주철로 만든 무게추가 사용되었는 데  아직도 제 기능을 한다.


서양식 목구조가 많이 시공 되었던 시기가 개화기기 이후 왜정시대에 주로 시공되었는 데 공장이나 방앗간, 창고 같은 대공간은 주로 하우트러스 (Howe Truss) 로 시공된 곳이 대부분이고 ( 인천 대한통운창고, 마곡문화관, 신촌역사 .. ), 주택은 주로 킹포스트 트러스가 주로 사용됬다(딜쿠샤, 명동성당, 주교관 )  





e8a402eebf094.png명동성당 주교관 가구도






0556e2c90eada.png명동성당 본당 가구도. ( 성당 내부의 주적 볼트 위에 위치하여 성당내부에서는 확인이 안된다)



f786824b8d53a.png인천 옛 대한통운 창고. 현재는 문화공간으로 쓰인다.




acfc848eb816a.png마곡동 옛 수리조합 배수 펌프장. 현재는 서울 식물원 문화공간으로 쓰이고 있다.158e8330f2f79.png3번 벤트. 3~4번 벤트사이에는 2층 다락이 있다. 시저트러스로 획일적으로 설계하면 벤트의 구조가 시야를 가리고  2층 난간설치가 용이하지 못하다. 킹포스트로 변경하여 시야를 확보할 수 있었다.  Form Follows Function.



a9ad48b71bdba.png1~2번 벤트 의 시저트러스.



c3f96c8b7d355.png종단면도, 펄린과 서까래가 질서정연하다.



용마루보 상세도면















저작자 명시 필수 영리적 사용 불가 내용 변경 불가
태그#팀버프레임#팀버프레임하우스#팀버프레임주택#팀버프레임설계#팀버프레임회사#중목구조#중목구조주택#중목구조설계#중목구조시공#중목구조회사#목구조#목구조시공#목구조설계#목구조엔지니어링#목구조전문#글루램#글루램시공#글루램설계#글루램엔니어링#timberframe#barnhouse#반하우스#송만영#전원카페#풀빌라#카페설계#카페건축#전원카페건축


27

Office 


1579 .   

Tanhyundong,  

Ilsan seo-gu, 

Goyang-Si ,  Korea


 E-mail. 


barnhouse@naver.com


Tel. 

010-3669-4148  


Fax. 

0504-841-6781  

Subscribe

Tel. 010-3669-4148
Fax. 0504-841-6781
E-mail.

el. 010-3669-4148
Fax. 0504-841-6781
E-mail. barnhouse@naver.coom
Addr. 1579 .   tanhyundong,

 Ilsan seo-gu, Goyang,  Korea